Skip to content
Architecture et décoration d'intérieur – La FabriqueArchitecture et décoration d'intérieur – La Fabrique
  • Menu
  • Accueil
  • Valeurs
  • Démarche
  • Qui sommes-nous
  • Vidéo
  • Réalisations
  • Actu
  • Contact
  • Espace client
    • Où
    • Contact
    • 06 79 14 98 98
Construction|Particulier|Permis de construire|Simulation 3D

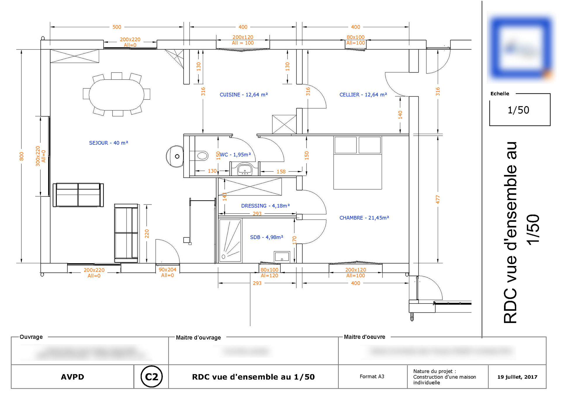
Permis de construire pour une maison individuelle

Co-projet pour la construction d’une maison neuve – Rélaisation des plans, simulations 3D et permeis de onstruite pour une architecte DPLG.

Aménagement et mise en couleur de combles
Déclaration de travaux pour une maison

Nous trouver, nous contacter

La Fabrique Geneviève Naudin - 14, rue Georges Courteline 37000 Tours

Tél. : 06 79 14 98 98

Mail : contact@lafabrique-genevievenaudin.com

Informations récentes

« D’un rêve à l’autre » : un vernissage sous le signe de la joie
09
Déc
« D’un rêve à l’autre » : vernissage
06
Nov
Copyright 2026 © La Fabrique Geneviève Naudin - Site réalisé par Hervé Iniguez
  • Accueil
  • Valeurs
  • Démarche
  • Qui sommes-nous
  • Vidéo
  • Réalisations
  • Actu
  • Contact
  • Espace client